Вновь построенное здание автоцентра для продажи и обслуживания автомобилей “Фольксваген” еще до сдачи в эксплуатацию получило значительные деформации фундаментной плиты и надземных конструкций: в плите образовались поперечные трещины с шириной до 3 мм. Получили крен металлические колонны каркаса, заделанные в бетонную плиту, деформировались (смялись) ряд легких навесных панелей ограждающих конструкций и покрытия, треснула боковая стеклянная витрина магазина.
Строительная площадка сооружения расположена в одном из новых районов в южной части Санкт-Петербурга. На территории площадки в течении почти 10 лет находилась свалка и абсолютные отметки поверхности колебались от 7.40 до 9.20. По пятну застройки в поперечном направлении отметки колебались от 7.60 до 8.40.
Конструктивная схема здания автоцентра размерами в плане 24.0 х 48.0 м представляет каркас из легких металлических конструкций индивидуального изготовления.
Фундаментом сооружения служит монолитная бетонная плита толщиной 250 мм из бетона марки В15, армированная отдельными пересекающими стержнями со сборными железобетонными башмаками под колонны размером 1200х1200 мм и толщиной 350 мм.
Под плитой проектом предусмотрена песчаная подушка из крупнозернистого песка толщиной 100 мм под башмаками и 400 мм под остальной частью плиты.
Ограждающие конструкции - навесные панели с утеплителем из минераловатной плиты с жестким креплением к ригелям каркаса. Перекрытия встроенного второго этажа - металлический профильный настил по металлическим балкам.
Подготовка площадки под пятно застройки началось в декабре 1996 года. Планировка производилась бульдозером до отметки 8.15 по оси “В”. Далее, отсыпался песок до отметки низа плиты - 8.55. Поскольку насыпной слой и отвалы грунта до начала земляных работ образовывали бугор с большими отметками по оси “А” (8.40) и меньшими по оси “В” (7.60 - 7.80) то отсыпанный песчаный слой получился неравномерным по толщине и у оси “В” составлял до 90 см. Его отсыпка производилась без послойного уплотнения и трамбования и осуществлялась бульдозером.
Ниже отсыпанного песчаного слоя находятся насыпные грунты и отвалы грунта толщиной под пятном застройки от 10 до 90 см, которые подстилаются более ранним насыпным слоем, состоящим из обломков железа, щебня, валуна и пр. Разведанная толща этого слоя составляет 50 см.
Насыпные грунты подстилаются озерно-ледниковыми отложениями мощностью 2,20 м в виде пылеватых, слоистых, полутвердых суглинков. Ниже них на всю разведанную глубину залегают моренные суглинки с включением гравия и песчаника. Указанные грунты при увлажнении и промерзании проявляют пучинистые свойства.
Уровень подземных вод отмечен на отметке 6.70 - на 30 см ниже кровли первого слоя суглинка.
Бетонирование плиты началось в декабре 1996 г., а монтаж основных конструкций был закончен в марте 1997 г. В начале апреля уже были отмечены деформации наружных навесных профилированных панелей, а позднее и внутренних. Характер деформаций ограждающих конструкций свидетельствовал о неравномерной осадке несущих колонн каркаса. Это подтвердили регулярные геодезические наблюдения за перемещениями колонн.
Очевидно, что в течении зимнего и весеннего периода фундаментная плита и вмонтированные в нее колонны получили серьезные деформации. В целом плита получила общий перекос в сторону оси “В” и относительная разность осадок по поперечной оси “3” приблизилась к предельно-допустимым для данного типа сооружения - 0,004. Аналогичная величина неравномерной осадки отмечена и между соседними колоннами в продольных рядах.. Осадки свыше 50 мм отмечены и у ряда внутренних колонн. Таким образом, можно отметить, что в течении зимы и начала весны происходило поднятие плиты и вмонтированных в нее колонн по оси “А” и осадка плиты по оси “В”. В дальнейшем, в течении весны происходило уменьшение поднятия плиты по продольной оси “А” и увеличение осадок по оси “В”.
На наш взгляд, такие деформации фундаментной плиты являются следствием нескольких факторов, связанных с напластованием основания и методами проведения работ нулевого цикла.
Так, поднятие колонн по оси “А” может быть объяснено промерзанием насыпного грунта из отвала, который в основном представлен неслежавшимся пылеватым суглинком. Увлажнение этого слоя могло произойти в течении декабря при оттаивании выпавшего снега, а также при бетонировании плиты. Процесс морозного пучения, связанный с поднятием грунта и конструкций сооружения, с марта-апреля месяца сменился его оттаиванием и просадкой. Только в мае осадка поднявшейся части фундаментной плиты по оси “А” составила от 7 до 23 мм. Несколько иные причины, привели к осадкам колонн по оси “В”. В этой части плиты толщина относительно свежего насыпного слоя из отвала пылеватого суглинка была незначительна или отсутствовала вообще и компенсировалась отсыпанным песчаным грунтом. При этом, при отсыпке песка в зимний период не предусматривались специальные технологические мероприятия по послойному или глубинному уплотнению искусственного основания. В связи с этим отсыпанный песок находился в рыхлом состоянии с коэффициентом пористости е > 0,7. Снежный декабрь с оттепелями способствовали увлажнению песка и образованию в его порах свободной воды, подвергшейся промерзанию с образованием при устойчивых морозах льдопесчаного плотного массива.
В весенний период, начиная с конца марта, происходило постепенной оттаивание льдопесчаного массива с уплотнением и просадкой песка, что и привело к деформациям части бетонной плиты (до 60 мм ) и вмонтированных в нее колонн.
Таким образом, фундаментная плита вместе с вмонтированными в нее колоннами получила значительные знакопеременные неравномерные деформации близкие к предельным.
До исправления поврежденных ограждающих конструкций следовало произвести ряд конструктивных мер по предотвращению развития осадок плиты и по недопущению в дальнейшем увлажнения и промерзания грунтов основания под плитой (рис 1).
По разработанному нами проекту были проведены следующие мероприятия по ремонту основания и фундамента автоцентра.
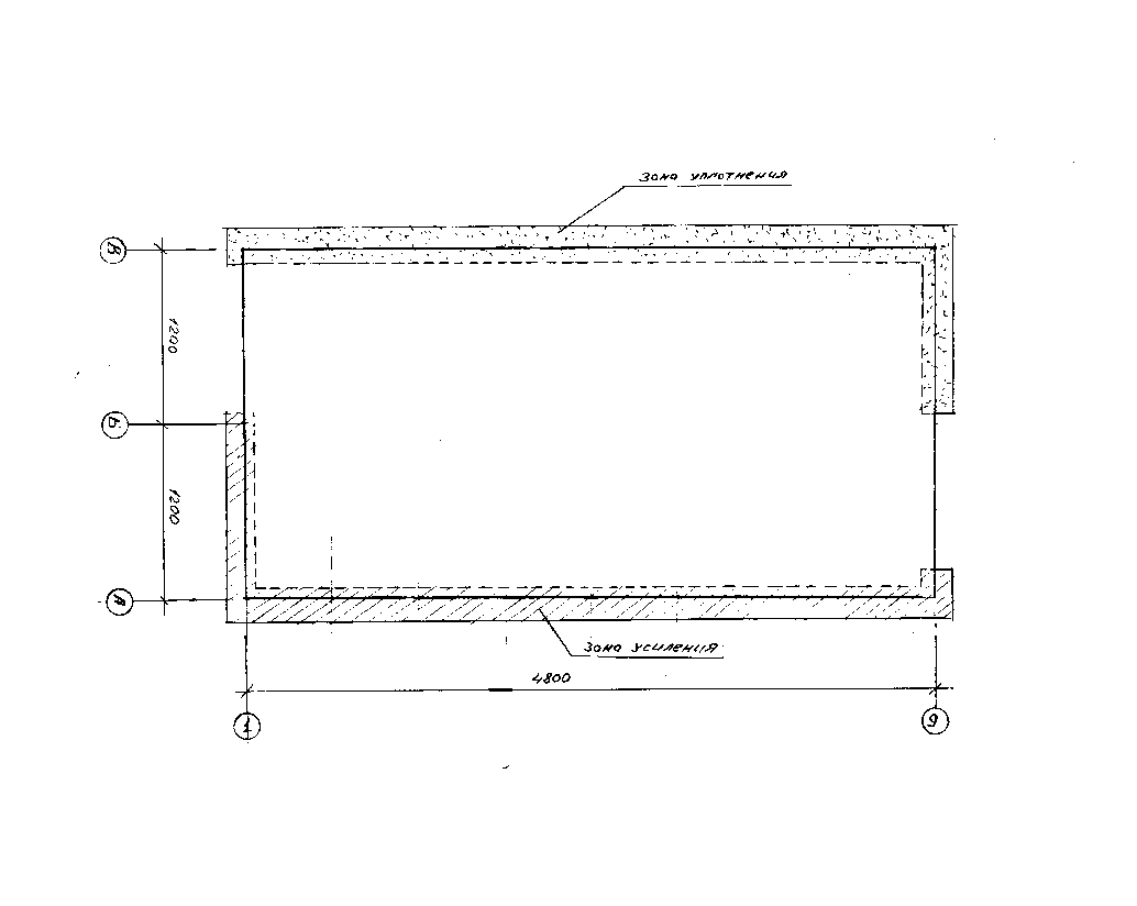
1. Уплотнение песчаного слоя под плитой по оси “В” вибраторами и подбивка его щебнем с шагом не менее 2 м и шириной захватки не более 1,5 м ( рис. 2 ).
2. Частичная выборка техногенного слоя неслежавшегося суглинка и строительного мусора из под подошвы фундаментной плиты по оси “А” и пересадка ее на трамбованные щебеночные столбы, доведенные до естественного грунта ( рис. 3 ).
Для исключению дальнейшего промерзания и увлажнения грунтов было предложено устройство теплоизоляционных экранов в виде дополнительного отсыпанного слоя песка и покрытие грунта по контуру здания теплоизоляционными материалами с устройством отмостки и отводом атмосферной влаги.
Все ремонтные работы были выполнены в июне-июле 1997 г. согласно разработанного проекта и в настоящее время здание автоцентра успешно функционирует.


Рис.2. Уплотнение песчаного основания по оси “В”

Рис.3 Усиление основания по оси “А”. Последовательность выполнения работ
(разрезы по 1–1)